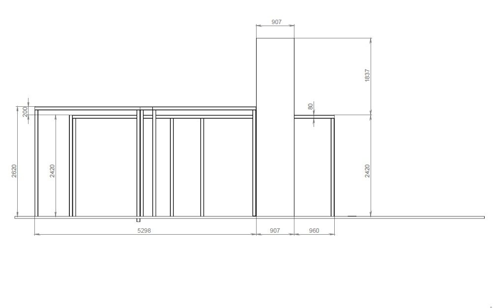
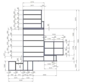
Антресольный этаж в квартиру
Проектирование и изготовление
Для производства антресоли 80м2 применялись:
- Балка 16Б2
- Швеллер 16
- Уголок 75*75
- Профиль 100*100*5 мм и 50*50*4 мм
- Листовая сталь 8 мм
Вы можете внести любые изменения в конструкцию.
Для вызова замерщика или расчета стоимости изделия по вашим размерам вы можете позвонить по телефону
От: 200000 руб.
Способы оплаты:
Наличными
Безналичный расчет
Доставка:
Условия доставки
























